Call Us Rent Calculator
Department:
Sales
Reference No.:
30223006
Postcode:
N18 1EB
Availability:
Under Offer
Bedrooms:
2
Bathrooms:
1
Receptions:
1

Summary

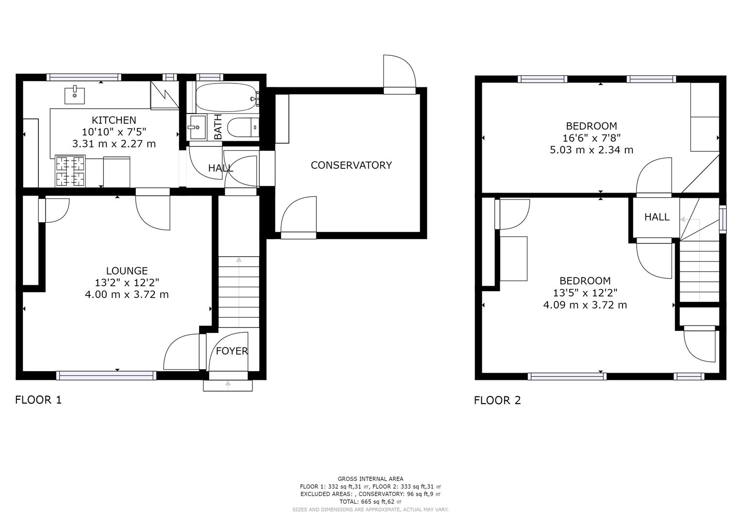
***VIRTUAL TOUR AVAILABLE*** Blueprints & Co Properties are delighted to offer this two bedroom, semi-detached family house. It has the potential to extend subject to planning permission. It is located on the border of N17, in Edmonton with White Hart Lane Train Station and Silver Street Station in close proximity, it allows easy links to the City, and also easy access to the A10 and A406 North Circular roads. This beautiful home also shares additional benefits of being a short walk away from North Middlesex Hospital, local amenities, and restaurants. The property is offered for sale in a well maintained order we recommend you view our virtual tour. Features include: Front off-street parking, double glazing, gas central heating, ground floor family bathroom, rear garden, and an extended conservatory .

Floor Plans

Request Further Details

Or arrange a viewing

Recent Blog Posts

Latest news and updates

A Complete Guide to Becoming a Successful HMO Landlord 16th December HMO Landlords

A Complete Guide to Becoming a Successful HMO Landlord

Venturing into property investment? Becoming a House in Multiple Occupation (HMO) landlord can offer higher rental yields and increased cash…

Read More
Do You Need an Additional HMO Licence? 21st November HMO Landlords

Do You Need an Additional HMO Licence?

If you own or manage a House in Multiple Occupation (HMO), you may be required to hold an Additional HMO…

Read More
Understanding HMO Regulations: A Guide for Landlords 3rd November HMO Landlords

Understanding HMO Regulations: A Guide for Landlords

Understanding and complying with HMO regulations is essential for landlords who want to protect their investment, avoid legal penalties, and…

Read More
How to Bleed Your Radiators 21st February Advice

How to Bleed Your Radiators

Eliminate Trapped Air for Optimal Radiator Performance Bleeding your radiators constitutes a vital aspect of preserving your heating system’s efficiency.…

Read More